Save
Ask
Tour
Hide
Share
$619,900
9 Days On Site

4020 Tangelo Avenue
Cocoa, FL 32926

For Sale|Single Family Residence|Active
4
Beds
3
Total Baths
2
Full Baths
1
Partial Bath
2,731
SqFt
$227
/SqFt
1971
Built
Subdivision:
Canaveral Groves Replat Sec C Unit 1 Sheet 1
County:
Brevard
4020 Tangelo Avenue4020 Tangelo Avenue4020 Tangelo Avenue4020 Tangelo Avenue
Save
Ask
Tour
Hide
Share

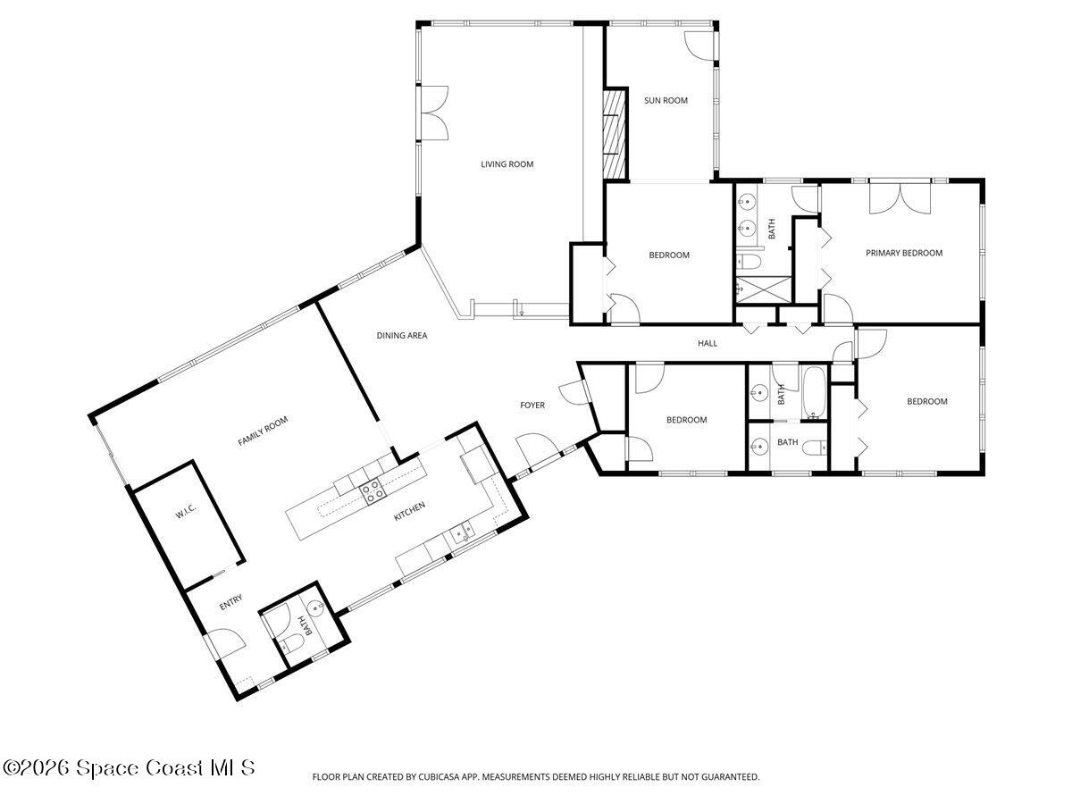
Set on over two private acres, this mid-century modern ranch-style estate is a rare blend of architectural authenticity, thoughtful updates, and future potential. With over 2,700 square feet of single-story living, the home offers expansive spaces designed to feel both grounded and open, exactly as mid-century design was meant to be. Inside, original details steal the show. Exposed wood beams stretch across vaulted ceilings, adding warmth and character, while original terrazzo floors run throughout, delivering durability, style, and a timeless nod to the home's roots. Anchoring the main living area is a striking brick fireplace that serves as both a focal point and a gathering place, equal parts cozy and architectural. Walls of windows bring the outdoors in, flooding the space with natural light and framing peaceful views of the surrounding acreage. The layout flows effortlessly into an updated kitchen where modern functionality meets classic design, making everyday living and enter- taining easy. Beyond the home, the land opens up real opportunity. The four-acre parcel can be subdivided into three separate parcels, offering flexibility for expansion, additional homes, or long-term investment. Whether the vision is a private estate, multi-generational living, or future development, the groundwork is already in place. Major upgrades provide peace of mind, including a new roof (2025), a newer HVAC system (2022), and impact windows (2023). The heavy lifting is done, leaving room for personalization and enjoyment. Spacious and full of potential, this architectural property stands apart. Mid-century character, modern confidence, and land that actually gives you options. That combination is hard to come by, and even harder to replace.

Save
Ask
Tour
Hide
Share
Listing Snapshot
Price 
$619,900
Days On Site 
9 Days
Bedrooms 
4
Inside Area (SqFt) 
2,731 sqft
Total Baths 
3
Full Baths 
2
Partial Baths 
1
Lot Size 
2.08 Acres
Year Built 
1971
MLS® Number 
1069498
Status 
Active
Property Tax 
$3,161.88
HOA/Condo/Coop Fees 
N/A
Sq Ft Source 
Public Records
Friends & Family
Recent Activity
a week agoListing first seen on site
a week agoListing updated with changes from the MLS®
General Features
Acres 
2.08
Additional Property Use 
Residential
Attached Garage 
Yes
Carport 
4
Direction Faces 
South
Garage 
Yes
Garage Spaces 
2
Levels 
One
Number Of Stories 
1
Parking 
AttachedGarage
Property Sub Type 
Single Family Residence
Sewer 
Septic Tank
Special Circumstances 
Standard
SqFt Total 
3451
Style 
RanchMid-Century Modern
Utilities 
Electricity Connected
Water Source 
Other
Interior Features
Appliances 
DishwasherElectric RangeRefrigerator
Cooling 
Central AirCeiling Fan(s)
Fireplace 
Yes
Fireplace Features 
Wood Burning
Flooring 
TerrazzoTile
Furnished 
Unfurnished
Heating 
Central
Interior 
Breakfast BarBuilt-in FeaturesCeiling Fan(s)Eat-in KitchenOpen FloorplanVaulted Ceiling(s)Walk-In Closet(s)
Laundry Features 
In BasementIn UnitLower Level
Save
Ask
Tour
Hide
Share
Exterior Features
Construction Details 
BlockBrickStucco
Lot Features 
WoodedCorner LotMany TreesSplit Possible
Other Structures 
Barn(s)Shed(s)
Patio And Porch 
Front Porch
Roof 
Shingle
View 
Trees/Woods
Waterview 
Trees/Woods
Community Features
Financing Terms Available 
CashConventionalFHAVA Loan
MLS Area 
211 - Canaveral Groves
Roads 
Asphalt
Schools
School District
Unknown
Elementary School
Fairglen
Middle School
Cocoa
High School
Cocoa
Listing courtesy of Waterman Real Estate, Inc.

The data relating to real estate shown on this website comes in part from the Internet Data Exchange (IDX) program of Space Coast Association of REALTORS®, Inc. IDX information is provided exclusively for consumers' personal, non-commercial use and may not be used for any purpose other than to identify prospective properties consumers may be interested in purchasing. All data is deemed reliable but is not guaranteed accurate.

Neighborhood & Commute
Source: Walkscore
Save
Ask
Tour
Hide
Share